Избранное

Механизм торцевого подъёма столешницы 47/548/630/412, оцинк., левая + правая

Артикул: ENDE-47-350

Поделиться
Печатать
Характеристики
Тип механизма
для торцевого подъёма столешницы
Длина, мм
548/630
Высота профиля, мм / Максимальная нагрузка, кг
47/30
Размер крепёжной площадки, мм
412x31
Синхронизация
нет
Фиксатор
нет
Производитель
Единица измерения
компл
Цены: RUB | BYN
Цена для физических лиц
1 290.78 руб.
Аналог со скидкой: от 0.00 руб.  
компл
Сообщить об ошибке

Описание

Применение: механизм обеспечивает увеличение посадочных мест за счёт дополнительных торцевых вставок, раскладываемых по отдельности. Это делает трансформацию столов, в т. ч. из керамогранита, более комфортной, позволяя быстро увеличить вместимость без использования громоздких панелей, хранящихся отдельно.
Вставки монтируются на крепёжные уголки, размещаются под основной столешницей и выдвигаются на шариковых направляющих. Подъём и плавная стыковка осуществляются с помощью системы рычагов, пружин и демпферов.

Тип механизма: для торцевого подъёма столешницы
Синхронность: несинхронный
Высота профиля/максимальная нагрузка: 47 мм/30 кг
Длина сложенного механизма: 548 мм
Длина раздвинутого механизма: 630 мм
Размер между каретками при максимальном раздвижении: 327 мм
Размер крепёжной площадки: 412×31 мм
Толщина металла: 2 мм
Максимальная толщина столешницы: 25 мм
Цвет: оцинкованный
Комплектация: направляющая с пружиной и демпфером (левая + правая) — 1 компл. (для одной вставки)
Материал: сталь холоднокатаная с покрытием «голубой цинк»

Преимущества:

  • основная столешница остаётся неподвижной (можно раздвинуть стол, не нарушая сервировку);
  • независимые вставки можно выдвигать по отдельности;
  • возможна установка вставок из стекла при использовании специального крепежа;
  • нагрузочная способность: 30 кг;
  • эстетика: механизмы устанавливаются с внутренней стороны царги и полностью скрыты в нерабочем состоянии;
  • плавный и лёгкий ход направляющих благодаря использованию высокоточных закалённых шариков;
  • автоматический подъёмный механизм с демпфером;
  • штампованный профиль из холоднокатаной стали обеспечивает высокую жёсткость;
  • производство на современном оборудовании с поэтапным контролем качества;
  • качественное антикоррозионное покрытие «голубой цинк».
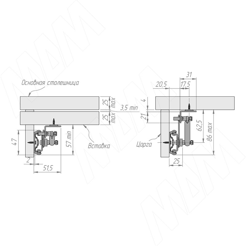
Размеры механизма для торцевого подъёма столешницы, 47/548/630/412 мм (артикул ENDE-47-350), чертеж 1 Размеры механизма для торцевого подъёма столешницы, 47/548/630/412 мм (артикул ENDE-47-350), чертеж 2 Размеры механизма для торцевого подъёма столешницы, 47/548/630/412 мм (артикул ENDE-47-350), чертеж 3
Вся размещенная в каталогах и на сайте техническая (в том числе схемы, планы, чертежи и т.д.), визуальная, текстовая и цифровая информация является исключительно справочной, не может быть копирована и использована без проверки перед применением. Компания не несет ответственности за возможные неточности, ошибки и/или опечатки в вышеуказанной информации. Компания имеет право по своему выбору и в любой момент вносить любые изменения в вышеуказанную информацию. Цвета в каталоге и на сайте могут не полностью совпадать с цветом изделий.

Отзывы и комментарии

Оставьте свой отзыв о товаре: Механизм торцевого подъёма столешницы 47/548/630/412, оцинк., левая + правая (ENDE-47-350)
Чтобы оставить отзыв авторизуйтесь
Ваш отзыв
Механизм торцевого подъёма столешницы 47/548/630/412, оцинк., левая + правая
Отличный
Комментарий*
Достоинства
Недостатки
Файлы
Перетащите сюда файлы или нажмите для выбора
Максимальный размер загружаемого файла 200M в формате JPG, JPEG, PNG, MP4, OGG, WEBM, MOV.
Максимальное количество файлов - 8 шт.
Представьтесь
Оставляя отзыв, я подтверждаю, что прочитал(а) Условия по размещению отзывов и принимаю их.
Условия по размещению отзывов

Оставлять отзывы могут только пользователи, зарегистрированные на интернет-сайте https://www.mdm-complect.ru/.

Оставляя отзывы на товары на интернет-сайте https://www.mdm-complect.ru/, пользователь соглашается с Правилами публикации отзывов, изложенными ниже:

  1. Отзывы публикуются только после их просмотра модератором. По возможности сохраняется авторская орфография и пунктуация. Исправлению подлежат только опечатки.
  2. Оценивайте, прежде всего, свойства изделий и описывайте свои впечатления о товарах. Чем точнее будет ваш отзыв, тем более он будет полезен другим!
  3. На сайте запрещается:

    публиковать сообщения с ненормативной лексикой, оскорбляющие достоинство других покупателей или магазина;

    указывать личные данные (например, электронный адрес, номер телефона);

    публиковать ссылки на цены или альтернативные варианты заказа или отправки товаров на сторонних интернет-сайтах;

    размещать выдержки или копии текстов со сторонних сайтов;

    публиковать рекламу или ссылки на сторонние сайты или URL;

    обсуждать цену товара, в том числе в других регионах, давать комментарии, касающиеся не продуктов, а нашего сервиса (для этих целей используйте форму обратной связи, расположенную внизу страницы);

    не рекомендуется использовать только заглавные буквы (капслок).

  4. Срок проверки и публикации – 1-7 рабочих дней.
  5. Если вы хотите удалить свой отзыв, направьте на электронный адрес webmdc@mdm-complect.ru соответствующее сообщение, указав дату отправки отзыва и артикул товара.
  6. Администрация сайта https://www.mdm-complect.ru/ оставляет за собой право удалить любой отзыв в любое время без объяснения причин и без предварительного согласования с автором отзыва.
  7. Пользователь гарантирует, что имущественные права на использование результатов интеллектуальной деятельности или средств индивидуализации, содержащихся в отзыве, принадлежат ему или используются им на законных основаниях с согласия правообладателя. Пользователь отказывается от всех личных прав автора, которыми он может обладать в отношении переданной информации и данных. Пользователь гарантирует, что его возраст превышает 18 лет.

Аналог со скидкой

Купить механизм торцевого подъёма столешницы 47/548/630/412, оцинк., левая + правая оптом и в розницу в городе Москва.

Подпишитесь на новости

И вы всегда будете в курсе последних событий, новинок и акций!

Каталог товаров
Ваш браузер устарел и больше не поддерживается. Работа в этом браузере не безопасна. Корректная работа на сайте не возможна.Подробнее.